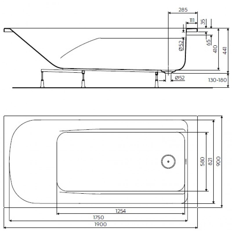
KOLO Comfort Plus pravoúhlá vana 190 x 90 cm, s madly XWP1491000
Kód / Model: XWP1491000
Popis
KOLO Comfort Plus pravoúhlá vana 190 x 90 cm, s madly XWP1491000- materiál: akrylát
- barevné provedení: bílá
- hrany vany jsou vyztužené
- rozměry: 190 x 90 x 41 cm
- objem vody: 264 l
- váha: 31,5 kg
!! Cena vany nezahrnuje ceny sedátka a podhlavníku. !!
Kompletní včetně nohou SNC1
Výběr správné vany
Příjemná relaxačasní koupel
Pohodlí může nabírat desítky forem. Zvolte si tvar vany, který Vám bude nejvíce vyhovovat a který se Vám zalíbí. A pak se sami přesvědčíte, že v akrylátové vaně KOLO je kouopel tak příjemná a relaxační.
Proč vany KOLO
Moderní akrylátové vany KOLO dávají nové možnosti pro navrhování koupelen. Promyšlené stylové linie, přitažlivé tvary, líbivé detaily a použití nejkvalitnějšího sanitárního akrylátu LUCITE - to vše vborně přispívá k vytvoření stylového koupelnového prostoru. Akrylát LUCITE má vynikající vlastnosti.
Také ocelové vany - novinka v sortimentu KOLO - jsou výrobky s nadstandardní životností a odolností proti poškození.
Přednosti sanitárního akrylátu LUCITE
- udržuje stálou teplotu koupele, vlastní akrylátový povrch vany nestudí, je příjemný a teplý na dotek
- je pevný a má dlouhou životnost, neuvěřitelně snadno odolová každodennímu používání a v případě poškození je opravitelný
- díky velmi hladkému povrchu se velice snadno udržuje čistý, zabraňuje usazování rzi, nečistot, růstu bakterií a plísní
- tlumý hluk, při napouštěný vody není slyšet obtěžující hlasitý zvuk
Pohodlná koupel
Je důležité věnovat pozornost tomu, aby vany byla opravdu pohodlná. Uživatelský komfort dodatečně zvyšují estetické podhlavníky a vyjímečně funkční madla, usnadňují vstupování a vystupování z vany nebo z,ěnu pohybu při koupeli. Pamatujte na uoevnění madel ještě před instalací vany - později to již nebude možné.
Údržba akrylátu
Designéři koupelen na celém světě používají akrylát pro jeho krásu a varialibitu při výrobě. Lze jej velmi snadno tvarovat, umožňuje vyrábět vany přitažlivých a praktických tvarů, plně ergonomické.
Pro čištění povrchu akrylátových van a vaniček je vhodné používat vždy měkký hadřík nebo houbu. Vhodné pro čištění jsou běžné tekuté čistící prostředky, které nejsou na bázi alkoholu a čpavku.
Nedoporučuje se používat abrazivních materiálů ( drátěnky, kartáče apod. ) a také práškových čistících prostředků.
K čištění se nesmí používat formaldehyd, aceton a čpavek nebo výrobky, které je obsahují, protože mohou vážně poškodit vanu.
Tipy pro čištění
K odstranění vodníh kamene z povrchu vany nebo sprchové vaničky použijte citronovou šťávu nebo ocet ( pokud možno horký ) a jemně otírejte měkkým hadříkem.
Těžce odstranitelné usazeniny nebo skrvny lze podle typu znečištění odstranit pomocí čistících tekutin nebo zubní pasty jemným otíráním měkkým hadříkem.
Oprava akrylátových výrobků
Větší mechanické poškození ( odštěpky, praskliny nebo vyštípnutí akrylátu ) je možno opravit pomocí sady na opravu akrylátových van a srchových vaniček KOLO ( č. výrobku A51920684 ). Odpovídající opravná sada zaručuje, že místo opravy bute takřka neznatelné, ale i přesto existuje možnost vznuke nevelkých barevných rozdílů z důvodu změnve výrobním procesu opravné sady ale také stářím opravovaného akrylátu.
Opravná sada i akrylát, se kterým se váže, jsou mírně odlišné materiály, proto nemusejí mít stejnou barevnou trvanlivost v průběhu používání.
Oprava takovýchto poškození je nutná prostřednictvím odborného instalatéra nebo autorizovaných servisních center SANITEC ( ASC ), jejichž adresy získáte na www.sanitec.cz nebo přímo v kanceláři Sanitec s.r.o.
Více o KERAMAG – KOLO – SANITEC s.r.o.
SANITEC, největší evropský výrobce sanitární keramiky a vybavení pro koupelny, zaujímá i významné postavení v celosvětovém měřítku. SANITEC je největším nebo druhým největším výrobcem a dodavatelem sanitární keramiky v každé zemi. V České a Slovenské republice jej reprezentuje obchodní a marketingové zastoupení SANITEC, s.r.o. , které nabízí: sanitární keramiku, exkluzivní série keramiky a nábytku KERAMAG; sanitární keramiku, koupelnový nábytek, vany, masážní vany a sprchové kouty KOLO s moderním designem a vysokou kvalitou za rozumnou cenu včetně vybavení malých koupelen a prostor pro tělesně postižené a školky;instalační podomítkové moduly pro WC Technic s jedinečnou funkcí Smart Fresh, exkluzivní sprchové kouty KORALLE.
KOLO - Výrobky značky KOLO nabízejí výjimečně široký sortiment keramiky, nábytku, van a sprchových koutů za výbornou cenu. Díky rozmanitým tvarům a provedení je možné si zařídit koupelnu podle vlastních představ.
ILUSTRAČNÍ FOTO
Obrázky se mohou lišit od originálního produktu/položky.
Dokumenty
Recenze (0)
Napsat recenzi
Hodnocení: Nejhorší Nejlepší
Opište prosím kód z obrázku do pole níže:

